יצירות מגורים מעוצבות בבניין בוטיק יוקרתי

בחלק המרכזי של שדרות התמרים, בפינת הרחוב רתמים, בונה חברת א.י מול המפרץ, את פרויקט הבוטיק היוקרתי BLUE CENTRAL EILAT. חמש קומות הפרויקט, מציגות מגוון יצירות מגורים בנות, 3-4 חד', מיני-פנטהאוזים מרהיבים עם מרפסות מרווחות, פנטהאוז שמיים 5 חד' במפלס אחד, על קומה שלמה כולל בריכת שחיה. דיירי הפרויקט ייהנו ממפרט טכני עשיר במיוחד, מחניון תת-קרקעי פרטי, לובי מעוצב, עיצוב אדריכלי חדשני ומוקפד של כל דירה, נוף פנורמי יפיפה של העיר והמפרץ הקסום על רקע הרי אדום, חנויות ובית קפה בקומת הרחוב, בניה ברמות גמר גבוהות במיוחד, במיקום הנח והנגיש בעיר, כאשר הכל במרחק הליכה או נסיעה קצרה במיוחד. זו הזדמנות יוצאת דופן, ליהנות מהטוב ביותר שיש לעיר אילת להציע, בפרויקט מהיוקרתיים והמדוברים בעיר.

מפרט מגה עשיר

נוף נפלא למפרץ

חניון תת-קרקעי

תנאים מעולים

לכל רוכש מוענק יעוץ מקצועי ואדיב של מעצבת פנים בהתאמה אישית

שטחי מסחר למכירה והשכרה

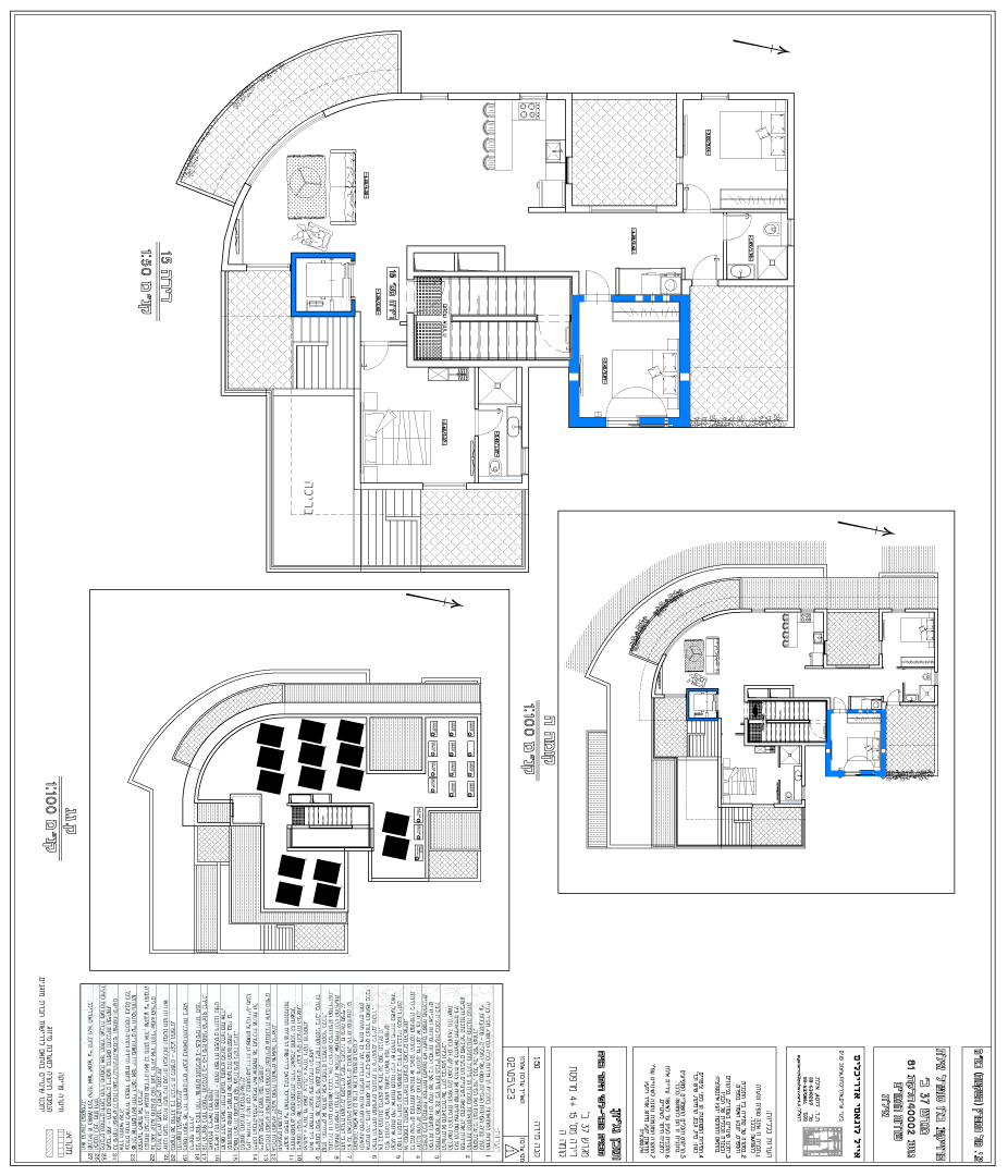
תוכניות דירה

  • הנמכות גבס בכל הדירה כולל תאורה
  • מיזוג אויר מרכזי בכל דירה
  • תריסי גלילה חשמליים בכל הדירה
  • דלת בטחון מעוצבת בכניסה לדירה רב-בריח או שווה ערך.
  • ריצוף גרניט פורצלן 80X80 בכל הדירה
  • בחדרי שינה אפשרות לריצוף או פרקט למינציה איכותי יוקרתי
  • חיפוי קירות וריצוף בחדרי האמבטיה בגרנית פורצלן ייחודית עד תיקרה
  • אסלות תלויות יוקרתיות עם מכלים סמויים
  • ברזים איכותיים של חברת Grohe או שווה ערך
  • מקלחונים בחדרי הרחצה
  • בחדרי הרחצה ארוניות מעוצבות, כיור מראה וברזים
  • דלתות פנים מעוצבת פנדור או רב-בריח או שווה ערך
  • חלונות אלומיניום קליל או שווה ערך יוקרתיים
  • במרפסת ריצוף גרניט פורצלן דמוי פרקט.
  • מעקות ברזל מעוצבים במרפסות
  • נקודת מים בכל מרפסת
  • פרגולות בכל המרפסות במראה יוקרתי
  • מטבח איכותי מעוצב כולל יחידת בילד אין כולל ארונות תחתונים ועליונים
  • כיור מטבח יוקרתי בהתקנה שטוחה
  • משטח שיש אבן קיסר או שווה ערך
  • ברז מטבח נשלף Grohe או שווה ערך
  • הכנה למדיח
  • הכנה למכונת כביסה
  • בית חכם לשליטה על מאור פנים, תריסים ודוד ע"פ מפרט החברה
  • חשמל תלת פאזי 3X25
  • שקעי חשמל מתוצרת גוייס
  • נקודות חשמל וטלויזיה בכל חדר
  • אינטרקום מצלמה בכל דירה
  • לנוחיותכם, לכל רוכש מוענק יעוץ מקצועי ואדיב של מעצבת פנים בהתאמה אישית.
  • לובי יוקרתי מעוצב
  • מערכת אינטרקום חדישה כולל דלת ביטחון מקודדת
  • מעלית חדישה שישה נוסעים
  • חניה תת-קרקעי (בתוספת תשלום)
  • מחסנים תת קרקעי (בתוספת תשלום)
  • תאורה סביבתית מעוצבת.
  • פיתוח סביבתי יוקרתי, גינה מעוצבת בשטחים הציבורים

אודות א.י. מול המפרץ

א.י מול המפרץ בע”מ בבעלות מר יוסי חי ומר אורי דוד בנתה מאות דירות בהצלחה, בפרויקט GOLD&BLUE (גולד אנד בלו) ופרויקט VILA SUR LA MEROUGE אשר נבנו ואוכלסו בשכונת שחמון 6 היוקרתית באילת, הפרויקטים כוללים 92 יחידות דיור ב- 18 בניינים בסטנדרט גבוה במיוחד וזכו להצלחה רבה, פרויקט המסחר והתעשיה DAVID CENTER באזור התעשיה שחורת בגודל כ- 4,000 מ”ר שבנייתו הסתיימה בשנה שעברה.

בימים אלו בונה החברה מתחם תעשיה ומסחר נוסף באזור התעשיה שחורת בגודל של כ- 1,600 מ”ר ובניין בוטיק הכולל 15 דירות ומסחר בשדרות התמרים פינת רתמים באילת

כל זאת בנוסף לאלפי יחידות דיור ועשרות אלפי מטרים של משרדים ומסחר שבנתה החברה במסגרת קבוצת סאדאב מהוותיקות והמבוססות בחברות הבנייה בחולון הפועלת בהצלחה מעל 50 שנה.

א.י מול המפרץ בע”מ מביאה עימה שנים של ניסיון בבנייה של אלפי יחידות דיור בסטנדרט גבוה, עיצוב ואדריכלות מרשימים, עמידה בזמנים, גב כלכלי איתן, ניסיון עשיר, שירות אישי ומקצועי.

לפרטים נוספים ושאלות:

השאירו פרטים ונחזור אליכם בהקדם

ההדמיות והתכניות להמחשה בלבד, את החברה יחייבו תכניות המכר והחוזים בלבד. ט.ל.ח